- HOME
- なるほど工事レポート
- Vol.5「完成」編
- サイトマップ
約2ヶ月でリノベーションが完成
Vol.4でご紹介した「床工事」のあと、窓や扉などの開口部工事や電気・ガス・内装工事、そしてキッチン、洗面、浴室、トイレなどの住設備工事とさまざまな工事が進み、工事開始から約2ヶ月を経てリノベーションが完成します。BeforeとAfterの写真をお見せしながら完成邸のポイントをご説明します。

リビングダイニング
リノベーション前は6畳の和室が隣接したリビングダイニングでしたが、改装後は和室も一体化させ、広くて明るいリビングダイニングになりました。もちろん見た目の心地よさだけでなく、二重床と壁面断熱により、冬でも足元が暖かく、夏は涼しい快適な空間ができあがりました。

キッチン
以前はキッチンもリビングダイニングに隣接した奥まった間取りでしたが、リノベーション後は使いやすい対面キッチンを採用。食事の支度をしながら、リビングダイニングにいる家族とコミュニケーションがとれる見通しの良いキッチンとなりました。このような間取りの変更も、床下の給排水管まで一新し、二重床を採用するするマルリノだからできることなのです。
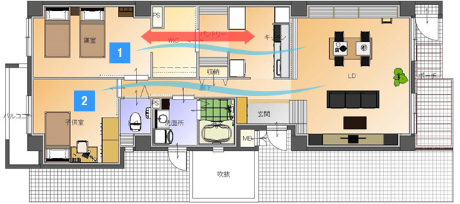
リノベーション後の導線
浴室は廊下や脱衣所との段差を無くしたユニバーサルデザイン。もちろんマルリノ標準仕様の壁面断熱により、冬の脱衣所の冷え込みも暖和され、お風呂上りの湯冷めの心配もありません。

リビングから寝室へ、ダイニングから子供部屋へと2つの風の道を設置することで、夏場は窓を開けると風通しがよく、涼しく過ごせるようになりました。

マルリノの「まるごとリノベーション」
これまでの工事レポートでもたびたびお伝えしてきたように、マンションの専有部分を全て取り払い、お客様の暮らしに合わせたプランに変更し、住み心地まで生まれ変わらせる。それが積水化学のまるごとマンションリノベーション「マルリノ」です。断熱性能の向上や配管を一新することで、はじめて得られる使い勝手と住み心地の良さ。それらをお客さまに実感していただけるように、マルリノでは個別の「完成邸見学」も承っています。
マルリノの良さをお客さま自身の目でぜひお確かめください。



